当前位置:首页>旅游>正文

12米乘12米两层别墅内部设计效果图有哪些推荐

2023-05-26 22:22:52 互联网 未知 旅游

12米乘12米两层别墅内部设计效果图有哪些推荐?

12米乘12米两层别墅内部设计效果图有哪些推荐

可以看下这个案例

12米乘12米两层别墅内部设计效果图有哪些推荐

北京顺义张家欧式二层别墅

尺  寸面宽12.1米 进深11.9米

建筑面积274.0㎡

项目概况

12米乘12米两层别墅内部设计效果图有哪些推荐

△总平面示意图

该项目位于北京市郊的顺义区,宅基地形状方正,西侧为亲戚家一层住宅,通过庭院西侧的沟通,连接了两栋住宅;宅基地北侧为邻家庭院,业主提出不能开窗的要求;东侧和南侧均为村内道路。

业主挑选了易盖房图库中编号572的易盖标品图纸,委托我们进行修改设计。设计师根据现场情况,在建筑西侧预留出1m间距便于室内采光,同时重新进行了庭院景观的设计。

图纸设计

12米乘12米两层别墅内部设计效果图有哪些推荐

△一层平面图

别墅沿用了标品图纸的两层设计,西侧的卫生间由于需要预留采光空间,因此设计师将凸出的墙体部分设计取消,将建筑平面设计为标准的四方形式。

此外,设计师取消了西北角储物间的设计,使得厨房面积得以扩增,同时连接暖通设备间,大大提高了日常使用的便捷性。

12米乘12米两层别墅内部设计效果图有哪些推荐

△二层平面图

二层布局方面,设计师取消了西北角的公卫设计,同时将原本西南侧卧室的私卫改为公卫,而将其与西北侧空间整合,形成起居室空间。这样的设计一方面可以针对一层稍显局促的公共空间进行有效补充,同时将来也可以根据需要增加墙体,将二层起居室改造为卧室,丰富功能选择。

造型设计

12米乘12米两层别墅内部设计效果图有哪些推荐

△鸟瞰图

12米乘12米两层别墅内部设计效果图有哪些推荐

△院落南侧效果图

建筑整体为欧式风格,作为易盖房标杆品质的代表,造型简约而又丰富,全部细节之处都有特殊的处理手法,门厅的柱座造型、门头的檐口设计、窗套的线条装饰、栏杆的精益求精……

12米乘12米两层别墅内部设计效果图有哪些推荐

△鸟瞰图

12米乘12米两层别墅内部设计效果图有哪些推荐

△鸟瞰图

设计师在立面分界处采用深色线条强调划分,分明的层次让建筑更加立体。二层露台使得整体的层次感更加突出,虚实结合彰显空间的优雅与灵动。室外露台空间的增加也为业主提供了更多活动空间,提升了使用乐趣和户外体验。

12米乘12米两层别墅内部设计效果图有哪些推荐

△庭院效果图

12米乘12米两层别墅内部设计效果图有哪些推荐

△庭院效果图

12米乘12米两层别墅内部设计效果图有哪些推荐

△庭院效果图

葡萄架、室外桌椅搭配种类丰富的植被,使得景观设置与南侧入户空间的欧式情调更加相得益彰。平日里坐在院内饮茶休憩,不知道是否会仿佛有一种身在意大利海滨小镇的错觉呢?

12米乘12米两层别墅内部设计效果图有哪些推荐

△人视图

12米乘12米两层别墅内部设计效果图有哪些推荐

△鸟瞰图

庭院开阔的空间可用于停车,同时也为接待亲朋好友提供了更多选择,搭配露台的室外体验,使得整体的休闲功能“展露无余”。

12米乘12米两层别墅内部设计效果图有哪些推荐

△东立面图

12米乘12米两层别墅内部设计效果图有哪些推荐

△西立面图

12米乘12米两层别墅内部设计效果图有哪些推荐

△南立面图

住宅公园,专注于农村住宅设计、民宿设计

12米乘12米的尺寸,用来建房是非常不错的,占地面积不大也不小,户型也方正,只要好好设计就能建出一栋大气优雅的别墅。闲话不多说,接下来就给大家推荐几套合适的图纸,看看你更喜欢哪一套?

第1套:对称设计 浪漫飘窗 豪华主卧,12×12米二层美式住宅,主体预算40万

占地尺寸:12m*12.1m

占地面积:144.3㎡

建筑面积:293.7㎡

建筑高度:9.9m

建筑情况:共设5室 3厅 4卫 1厨 2储藏室 1棋牌室 1书房 1衣帽间 1露台

12米乘12米两层别墅内部设计效果图有哪些推荐

不同于农村常见的欧式洋房,这套美式别墅采用对称设计,外观造型丰富,辨识度十足。灰蓝色外墙更显清新唯美,浪漫飘窗设计,则能为人们带来更好的居住体验。

12米乘12米两层别墅内部设计效果图有哪些推荐

室内布局方面,进门处有一个门厅作为缓冲。右侧是大客厅左侧是带套卫的老人房。北侧设立餐厨和次卧,卫生间干湿分离设计,一个储藏室方便归纳家中杂物。二层南侧设立一个豪华主卧,居住体验拉满。还设立了一个棋牌室,这在农村是非常实用的。

12米乘12米两层别墅内部设计效果图有哪些推荐

第2套:舒适阳台 落地窗 多卧室,12×11米经典欧式别墅,主体预算32万

占地尺寸:12×11.6m

占地面积:129㎡

建筑面积:259㎡

建筑高度:10.2m

建筑情况:1客 1厨 1餐 6卧 1茶室 1起居室 1外廊 1阳台

12米乘12米两层别墅内部设计效果图有哪些推荐

这是一套经典的欧式别墅,外观采用素雅的真石漆点缀,精致的落地窗、唯美的罗马立柱,再搭配腰线跟檐口,丰富的立面元素将欧式建筑的精致优雅展现得淋漓尽致。

12米乘12米两层别墅内部设计效果图有哪些推荐

入户处设立一个外廊和玄关,很好地起到了室内外过渡的效果。玄关、客厅连通的设计,入户便能给人宽敞通畅的舒适感受,招待客人非常好。餐厨位于北侧,两间卧室的配置,满足父母的居住需求。二层四室两厅布局,加上一个舒适阳台,方便晾晒衣物以及乘凉观景。

12米乘12米两层别墅内部设计效果图有哪些推荐

第3套:宽敞大厅 舒适套房 阳台,12×11米时尚阳光美墅,主体预算30万

占地尺寸:12.3m×11.7m

占地面积:133.2㎡

建筑面积:251.5㎡

建筑高度:10.5m

建筑情况:3室 2厅 1厨 1餐厅 4卫

12米乘12米两层别墅内部设计效果图有哪些推荐

这是一套时尚潮流的现代美墅,外观造型别具一格,灰蓝色的屋面瓦与浅色墙面,将整栋建筑衬托得素雅不失风度。大面积采用玻璃元素营造通透的气质,更胜一筹。在农村建一栋这样的别墅,村里人都会投来羡慕的眼光。

12米乘12米两层别墅内部设计效果图有哪些推荐

室内布局也是通透合理,进门有门厅缓冲,客厅娱乐区一体化设计,营造出一个宽敞的公共区域,招待客人不显拥挤。南面设计一个带套卫的老人房,提升家中老人的居住品质。餐厨位于北侧,上菜方便用餐私密。二层南向也设立了一个宽敞的大客厅,结合舒适的阳台,给家人一共一个更为私密舒适的休闲区域,两个卧室均为套间设计,提升居住体验。

12米乘12米两层别墅内部设计效果图有哪些推荐

这3套户型都设计得非常好,你更喜欢哪一套?

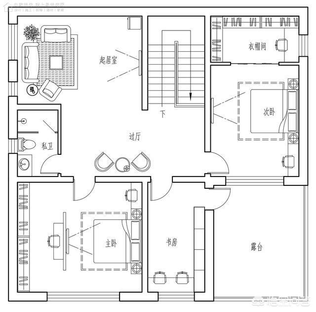
你好,12米乘以12米的两层别墅,还是比较好安排的。

在平面格局上,可以安排成楼中楼样式的,一层可以安排厨房、餐厅、公共卫生间、主会客厅,一个带卫生间的老人房,一个小储藏间,二层安排三个卧室,一个小偏厅,一个公共卫生间,其中主卧室带卫生间及衣帽间。
12米乘12米两层别墅内部设计效果图有哪些推荐
12米乘12米两层别墅内部设计效果图有哪些推荐

在整体装修效果上,就可以有非常多种选择了,像现在比较流行的新中式风格,或者现代简约风格,中式风格,简欧风格等等。
12米乘12米两层别墅内部设计效果图有哪些推荐
12米乘12米两层别墅内部设计效果图有哪些推荐

建议你还是找一家专业的设计公司帮你设计一下比较好。

希望我的回答能帮助到你

新中式比较可以,本人热衷

主要看自己喜欢什么风格,最好是去一家装修公司看看。

上百度,一大把

12米乘12米两层别墅内部设计效果图有哪些推荐

简单设计图,12米*12米二层别墅


12米乘12米两层别墅内部设计效果图有哪些推荐12米乘12米两层别墅内部设计效果图有哪些推荐

随便看看